Découvrez nos réalisations en génie civil, de la conception à la construction de bâtiments et d'infrastructures.
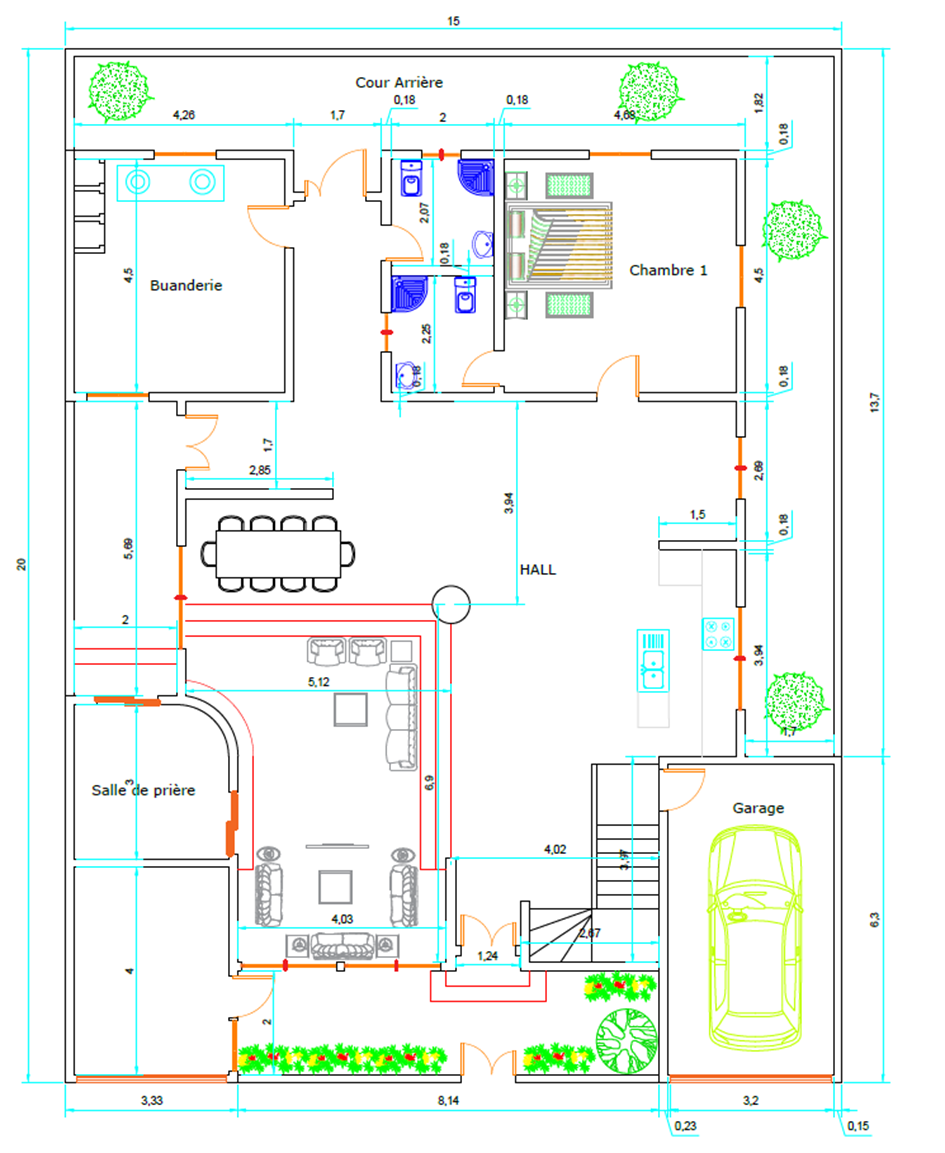
Projet de construction d’un bâtiment en rez-de-chaussée (RDC) sur un terrain de 300 m², conçu pour répondre aux besoins fonctionnels et esthétiques de son propriétaire.
Grâce à notre expertise en génie civil et en conception architecturale, nous avons assuré une optimisation de l’espace tout en respectant les normes de construction et de sécurité. Lansar Engineering s’engage à fournir des solutions d’ingénierie modernes et adaptées aux besoins de nos clients. Contactez-nous pour vos projets de construction !

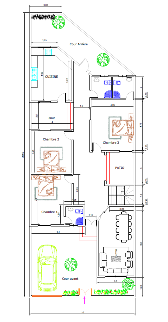
Projet de villa en rez-de-chaussée (RDC) située à Zac Thiès, offrant un espace de vie confortable et fonctionnel, pensé pour répondre aux besoins de ses occupants.
Grâce à notre expertise en conception architecturale et en ingénierie structurelle, nous avons optimisé l’agencement des espaces pour assurer un confort maximal, tout en respectant les normes de construction et d’aménagement urbain.

Conception et construction d'une butée de courbure DN1200 dans le cadre d'un projet de génie civil appliqué à l'hydraulique. Il s'agit d'une structure essentielle pour garantir la stabilité et la sécurité des réseaux de transport d'eau sous pression.
Cette butée a été conçue pour prendre en compte les contraintes hydrauliques et mécaniques, en utilisant des matériaux haute résistance pour garantir une durabilité à long terme.
Avec notre expertise en génie civil et en génie hydraulique, Lansar Engineering accompagne ses clients dans la conception et la mise en œuvre de solutions techniques adaptées aux infrastructures de transport d'eau. Besoin d'expertise en hydraulique et en structures de soutien ? Contactez-nous pour une étude personnalisée !

Ce projet implique le suivi et le contrôle de la construction d'une station de pompage visant à optimiser le réseau hydraulique. Ce projet clé en main intègre des solutions en génie civil et mécanique pour garantir une infrastructure fiable et durable.
Lansar Engineering veille à ce que la construction soit conforme aux normes en vigueur et optimise la performance et la sécurité de l'infrastructure tout en contrôlant les coûts et les délais.
